CONCOURS D’IDEES CONFORT 2050



Nature du projet : Réadapter l’habitat aux climats
Prix : Mention du Jury
Localisation : Le Houlme, 76770
Initiateurs du concours : 3F, ENSA Versailles et son mastère spécialisé ® TEC XX
Architecte Mandataire : studioZERO
Architecte Paysagiste : Malvina Delafosse
Surface : 3 000 m²
Crédit photo : ElisaBapst







DESCRIPTION




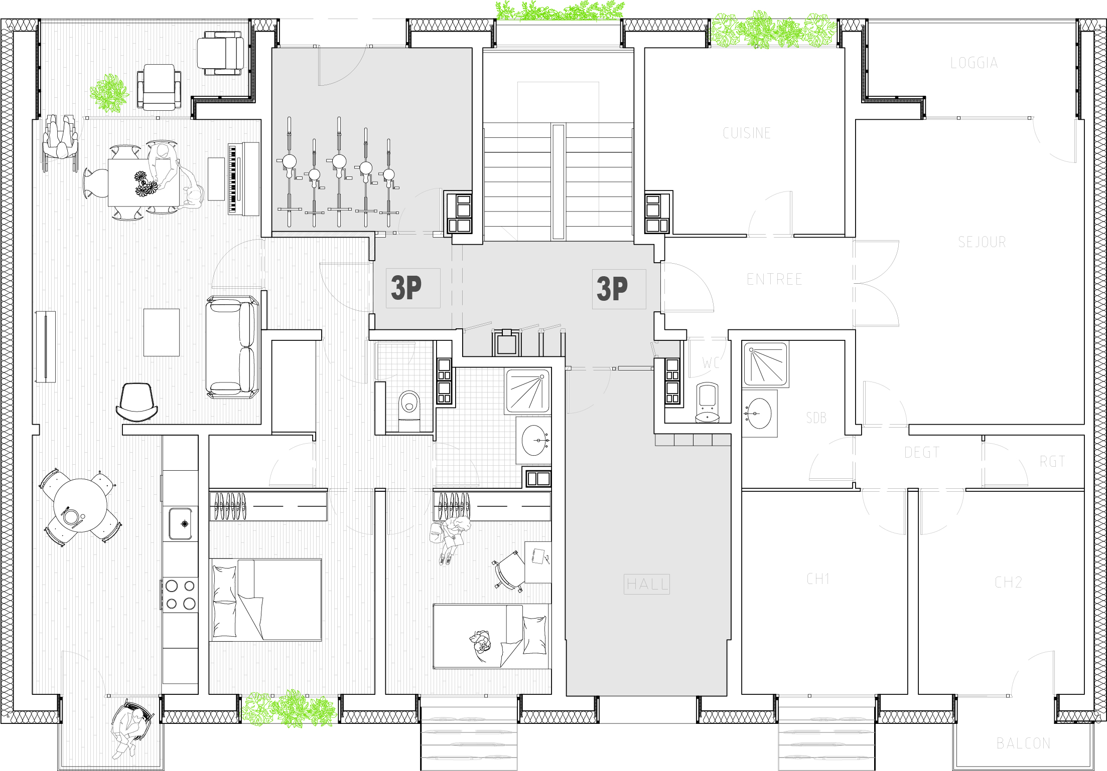
Le projet du Houlme interroge la capacité des ensembles de logements ordinaires à s’adapter aux conditions climatiques de demain, sans rompre avec la vie déjà là.
Plutôt que de proposer une transformation radicale, il s’appuie sur l’existant : le bâti, le paysage, les usages, pour en révéler le potentiel et en corriger les fragilités.

La stratégie s’organise autour de trois strates complémentaires : la façade, le sol et la toiture.
La façade devient un support d’usages et de microclimats, grâce à des modules bioclimatiques préfabriqués qui améliorent le confort d’été et d’hiver tout en prolongeant l’espace domestique.
Le sol, largement désasphalté, se transforme en un parc habité structuré par des cheminements doux, des placettes et des espaces de rencontre, reconnectant le quartier à son environnement paysager.
Les toitures, longtemps techniques et invisibles, deviennent productives et partagées : elles accueillent énergie solaire, gestion de l’eau et programmes collectifs au service des habitants.

À travers ces gestes simples et lisibles, le projet propose une nouvelle manière d’habiter un quartier existant : plus sobre, plus collective, et profondément ancrée dans le quotidien.





DEMARCHE ECO-CONCUE



La proposition repose sur une approche pragmatique et réplicable de la réhabilitation climatique.
Le projet privilégie le réemploi des matériaux existants, notamment le béton issu des éléments déposés, réutilisé pour les aménagements de sol et les circulations.
La désimperméabilisation massive des espaces extérieurs permet de limiter les îlots de chaleur, de favoriser l’infiltration des eaux pluviales et de renforcer la biodiversité locale.

Les interventions sont pensées pour être réalisées en site occupé, avec une attention particulière portée à la limitation des nuisances de chantier : préfabrication des modules, interventions ciblées, phasage progressif.
La gestion des ressources (énergie, eau, sol) s’inscrit dans une logique d’autonomie locale et de sobriété, sans dépendre de dispositifs complexes ou sur-technologiques.

Au-delà du site du Houlme, le projet se conçoit comme un prototype de transformation : une méthode adaptable à d’autres ensembles de logements, fondée sur quatre gestes clés : réemployer, désasphalter, relier, partager, pour faire évoluer l’existant vers des quartiers durables et désirables à l’horizon 2050.







StudioZERO – Agence d’architecture à Paris et en région.
📍 Paris – Nièvre – Île-de-France
contact@studiozero-architecture.com
@studiozero_architecture

© StudioZERO – Tous droits réservés